Índice de contenidos:
Cuando una planta industrial crece, el sistema de transporte suele convertirse en uno de los puntos más delicados del proyecto. No solo debe adaptarse al nuevo espacio, sino hacerlo sin comprometer la calidad del producto, el consumo energético ni la operativa diaria. Esto puede ocurrir por ejemplo en el sector de la nutrición animal, donde los pellets de pienso son frágiles, generan polvo y exigen condiciones higiénicas muy controladas.
Este fue el escenario al que se enfrentó una multinacional dedicada a la fabricación de piensos para ganadería, avicultura y acuicultura durante la ampliación de una de sus fábricas en España. El reto era claro: integrar transportadores para cargas a granel capaces de elevar y desplazar pellets de forma suave, eficiente y segura, en un espacio con importantes limitaciones estructurales. La solución llegó de la mano de un elevador de cangilones pendulares tipo Z de Simatek, implementado y coordinado por Sinfimasa.
El reto del cliente: delicadeza, eficiencia y restricciones de espacio
La necesidad del cliente iba mucho más allá de “subir producto”. El sistema debía manejar pellets de pequeño tamaño (entre 1 y 1,5 mm), con baja humedad, algo adherentes y polvorientos, pero muy frágiles. Cualquier impacto excesivo generaba roturas, pérdida de calidad y aumento de polvo en planta.
La capacidad requerida era de 1,2 m³/h, con una densidad del producto de entre 0,5 y 0,6 kg/dm³ y una temperatura máxima de trabajo de 30 °C. A esto se sumaba un requisito importante: reducir el consumo energético frente al elevador anterior y, especialmente, frente a un sistema neumático, con el objetivo de disminuir la huella de carbono de la instalación.
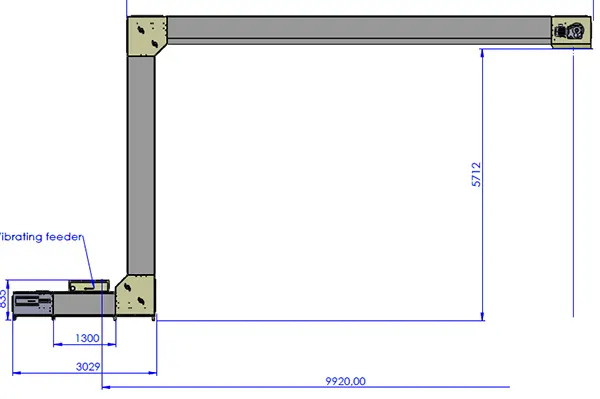
El trazado tampoco ayudaba. El transporte debía salvar 6 metros de elevación vertical y continuar con 10 metros en horizontal, incluyendo un voladizo crítico de unos 9 metros. Además, no existía espacio suficiente para instalar sistemas convencionales de regulación de carga, lo que aumentaba el riesgo de sobrecargar o infracargar el equipo. Todo ello debía cumplir, además, con certificación ATEX zona 22, por la posible generación de polvo.
La solución: un elevador tipo Z de cangilones pendulares Simatek
Tras analizar el proceso en detalle, se propuso una solución completamente a medida basada en un elevador de cangilones pendulares tipo Z. Este sistema permitía resolver en una sola máquina tanto el transporte vertical como el horizontal, sin recurrir a transiciones agresivas ni a sistemas adicionales.
El diseño de los cangilones pendulares de rotación libre fue clave. Gracias a este sistema, los pellets se cargan, elevan y descargan con caídas mínimas y sin impactos bruscos, preservando su integridad durante todo el recorrido. A diferencia de otros transportadores para cargas a granel, aquí no hay aceleraciones innecesarias ni golpes que degraden el producto.
Otro punto decisivo fue el consumo energético. El elevador tipo Z resultó ser mucho más eficiente que el sistema anterior y claramente superior a una alternativa neumática, tanto en coste operativo como en sostenibilidad.
La estructura modular permitió configurar exactamente el recorrido requerido por la planta, integrándose sin problemas en el layout existente y dejando abierta la posibilidad de incorporar futuros puntos de entrada o salida.
Debido a la falta de espacio, no fue posible instalar el tambor de carga estándar de Simatek. En su lugar, se integró un sistema compacto de carga por vibración con motorreductor certificado ATEX 22, que garantizaba una alimentación estable y controlada sin riesgo de sobrecarga.
Diseño orientado a limpieza, mantenimiento y estabilidad estructural
Uno de los aspectos más valorados por el cliente fue la facilidad de limpieza y mantenimiento del sistema. El elevador se diseñó con múltiples accesos estratégicos: cubiertas desmontables en el tramo superior, ventanas de inspección en zonas clave, puertas de limpieza en el tramo inferior y bandejas accesibles para una limpieza completa del interior.
Este enfoque no solo facilita el mantenimiento, sino que ayuda a cumplir con los estrictos estándares de calidad del sector de la nutrición animal, donde la limpieza es tan importante como la capacidad productiva.
El voladizo de 9 metros supuso otro reto técnico. Para resolverlo, se diseñó un sistema de sujeción específico mediante brackets y arandelas a medida, con una separación máxima de 4,5 metros entre soportes. Se asesoró al cliente sobre la mejor distribución de cargas y las opciones de anclaje, ya fuera desde techo o suelo, garantizando estabilidad sin vibraciones ni deformaciones.
Implementación y acompañamiento técnico de Sinfimasa y Simatek
El proyecto no se limitó al suministro del equipo. Sinfimasa gestionó toda la coordinación en España, actuando como interlocutor único entre el cliente y Simatek. Durante la fase de definición, se ajustaron todos los parámetros técnicos con una comunicación fluida y respuestas rápidas.
Tras la fabricación a medida, la logística se gestionó de forma eficiente y los técnicos de Simatek se desplazaron a la planta para supervisar el montaje y la puesta en marcha. Se ajustaron tensiones, se alineó la estructura y se verificó el funcionamiento del elevador bajo condiciones reales de carga.
Un caso de éxito en transportadores para cargas a granel
La implantación del elevador tipo Z de Simatek supuso una mejora clara y medible para la planta. Los pellets llegaron al destino sin roturas ni generación excesiva de polvo, manteniendo la calidad del pienso. La capacidad de 1,2 m³/h se sostuvo de forma continua, sin necesidad de ralentizar la línea.
El consumo energético se redujo de manera significativa respecto al sistema anterior, contribuyendo a los objetivos de sostenibilidad del cliente. La estructura modular permitió una integración perfecta y dejó abierta la puerta a futuras ampliaciones. El mantenimiento y la limpieza se simplificaron notablemente, y el sistema de sujeción personalizado garantizó la estabilidad del voladizo. Además, el equipo permite ahora el llenado seguro de big-bags de hasta 800 kg, aportando una versatilidad adicional al proceso productivo.
Este caso demuestra cómo unos transportadores para cargas a granel bien diseñados pueden resolver con éxito los retos más exigentes de una planta de piensos. La combinación de tecnología Simatek y el acompañamiento de Sinfimasa dio lugar a una solución fiable, eficiente y preparada para el futuro.




